
Ulica: | Cestárska |
---|---|
Mestská časť: | Šibeničný vrch |
Obec: | Rimavská Sobota |
Okres: | Rimavská Sobota |
Kraj: | Banskobystrický kraj |
Druh: | Domy |
Typ: | Predaj |
Typ domu: | Rodinný dom |
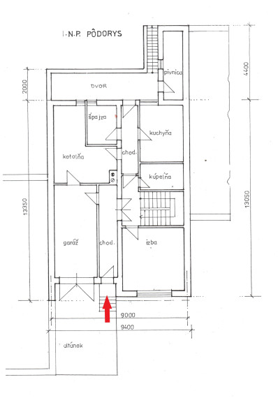
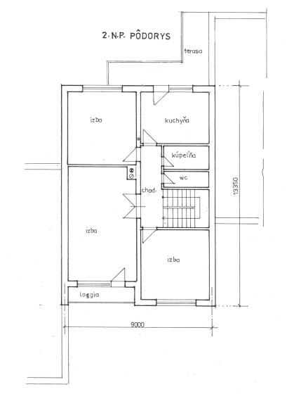
Už vás nebaví tlačiť sa s rodinou v byte a pokukujete po rodinnom dome? Mám pre vás príjemné bývanie vo vyhľadávanej tichej lokalite mesta Rimavská Sobota. Dvojpodlažný rodinný dom v radovej zástavbe z 80-tych rokov, ktorý zatiaľ nie je zrekonštruovaný, no ponúka príležitosť rekonštrukcie a zmien dispozície podľa vlastných predstáv. Dom má 4 izby, balkón, terasu, plynové kúrenie, veľkú garáž a určite vás poteší aj krásna predzáhradka a útulná záhrada na mierne svahovitom pozemku. Pozrite si dispozíciu domu v prehľadných pôdorysoch. Rád vás privítam aj na osobnej obhliadke priamo na mieste. Doprajte svojej rodine priestor a vymeňte byt za dom, táto slnečná lokalita v Rimavskej Sobote je určite dobrá voľba.
Výhody
Dohoda na cene možná!
Balkón
Bez ťarchy
Garážové státie plus prístrešok pre druhé auto
Ideálna orientácia
Občianska vybavenosť
Slnečný
Skleník
Krásne výhľady na mesto
Vedúci realitnej kancelárie
Už viac ako 15 rokov sa venujem práci s ľudmi a realitami. V roku 2010 som začal ako realitný maklér so sídlom v Rimavskej Sobote.
Byť realitným maklérom je spojenie životného štýlu, presvedčenia a neustáleho osobnostného rastu. Každý môj realitný obchod je pre mňa jedinečný, každá nehnuteľnosť má svoj príbeh. S mojimi klientami si vytváram vzťah, aby som dokonale pochopil ich potreby a očakávania. Úspešne predať nehnuteľnosť nie je jednoduché. Práve preto sa zameriavam v realitách na miesto kde žijem. Tu som doma a v realitnom trhu som zorientovaný. Pri každom obchode sa o každý typ nehnuteľnosti postaráme v najvyššom štandarde, či sa jedná o 1 izbový byt alebo luxusný rodinný dom.